Biệt thự 2 tầng tại Bắc Từ Liêm 5 phòng ngủ 1 phòng thờ
Mẫu biệt thự 2 tầng tại Bắc Từ Liêm thuộc dạng nhà mái thái với diện tích 110m2/sàn. Khoác trên mình màu trắng tinh khôi đã khiến các chi tiết trang trí ngoại thất trở nên sắc nét hơn. Không quá đồ sộ như những tòa lâu đài hay biệt thự cổ điển đẹp nguy nga. Nhưng mẫu biệt thự 2 tầng tại Bắc Từ Liêm vẫn cuốn hút người xem một cách kì lạ. Tại sao vậy? Câu trả lời sẽ có khi bạn chiêm ngưỡng phối cảnh và cách bố trí công năng mẫu biệt thự đẹp này ngay sau đây.
Phối cảnh biệt thự 2 tầng tại Bắc Từ Liêm 110m2
Sự kết hợp hoàn hảo của màu sắc cùng các hình khối trong kĩ thuật thi công và họa tiết trang trí, gờ phào chỉ. Đã tạo nên một mẫu biệt thự 2 tầng vô cùng đẳng cấp. Với diện tích 110m2/sàn, các KTS đã xử lí khéo léo số liệu để bố trí phối cảnh và công năng cho hợp lí. Giúp công trình biệt thự 2 tầng hoàn hảo về mọi mặt.
Tường bao với thiết kế đẹp mắt, kết cấu bền vững, an toàn cũng là một điểm cộng. Các mảng tường đan xen cùng hàng rào sắt tạo khung nhìn thoáng vào phía trong. Trụ cổng to, vuông vắn, vững chắc kết hợp với mái cổng lợp ngói. Tạo nên điểm nhấn độc đáo cho thiết kế biệt thự đẹp khi chỉ mới quan sát từ phía ngoài.
Khi lược bỏ hệ tường rào ta thấy căn biệt thự 2 tầng thật sự rất sang trọng và bề thế. Đó là lí do mà vì sao ai ngắm nhìn nó cũng phải xuýt xoa không thôi.
Chân tường nhà, bậc thang tam cấp cùng sảnh chính được ốp đá tự nhiên màu nâu xám. Nổi bật lại dễ lau chùi sạch sẽ. Các trụ cột vuông, tròn màu vàng vương giả đỡ mái hiên và mái ban công. Cùng các mảng ốp trang trí có hoa văn đẹp mắt giúp công trình thêm phần lôi cuốn.
Ban công có tận dụng một chút kiến trúc Pháp với hình vòm uốn cong mềm mại. Hệ thống lan can bằng sắt phun sơn tĩnh điện màu đen với hoa văn đẹp uốn lượn công phu. Tạo nên hiệu ứng thẩm mĩ cao cho mặt tiền mẫu biệt thự 2 tầng.
Để cho ra một mẫu biệt thự đẹp sang trọng như vậy thì không thể bỏ qua hệ mái thái góc chữ A giật cấp. Thiết kế độ dốc cao và thoải, ưu điểm là chịu nhiệt và chống thấm rất tốt. Thêm vào đó là hệ mái này làm tăng tính thẩm mĩ, giúp công trình trở nên cao sang, bề thế hơn.
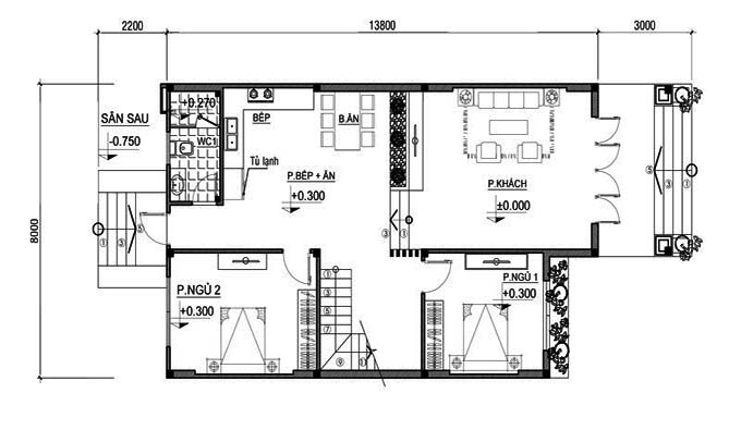
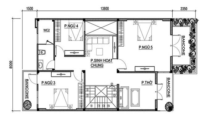
Chia công năng biệt thự 2 tầng tại Bắc Từ Liêm 5 phòng ngủ 1 phòng thờ
Để cho ra một mẫu thiết kế biệt thự đẹp, ngoài phối cảnh thì các bố trí công năng cũng có vai trò vô cùng quan trọng.
Đầu tiên là khoảng sân trước rộng rãi, được tận dụng là nơi để xe, vui chơi cho trẻ nhỏ. Từ sảnh chính tiến vào trong là phòng khách, ngăn cách với phòng bếp ăn bởi kệ tủ gỗ. Cầu thang nằm giữa, đối diện với bếp ăn, 2 bên là 2 phòng ngủ chung phòng vệ sinh đặt ở góc nhà.
Tầng 2 là không gian cho 3 phòng ngủ nằm 3 góc của căn nhà. Phòng sinh hoạt chung nằm giữa đối diện cầu thang bố. 1 góc nhà còn lại sẽ được bố trí phòng thờ nhìn ra ban công phía trước nhà.
Chắc hẳn qua bài viết này, bạn đọc đã biết được vì sao mà mẫu biệt thự 2 tầng tại Bắc Từ Liêm lại khiến người xem phải đắm đuối đến vậy. Hi vọng qua mẫu thiết kế nhà đẹp này, bạn đọc đã tìm được ý tưởng cho tổ ấm tương lai của mình. Chi tiết liên hệ hotline: 0903.221.369 – 0981.221.369 để được KTS của Kiến Tạo Việt tư vấn trực tiếp!
Đào Xoan
Công ty cổ phần XD và TM Kiến Tạo Việt




