NHÀ ỐNG 4 TẦNG ĐẸP 4 TẦNG 5X18M TẠI HƯNG YÊN
Những thông tin chính của mẫu nhà ống 4 tầng này như sau :
+ Chủ đầu tư : Phạm Ngọc Thạch
+ Địa chỉ : Đường Dựng, Liên Phương, TP Hưng Yên
+ Kích thước xây dựng : 5x18m = 80m2
+ Tổng diện tích sàn : 300m2
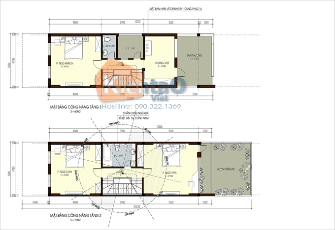
+ Số lượng tầng : 4 tầng
+ Phong cách kiến trúc : Hiện đại
+ Số phòng : Sân để xe+tiểu cảnh, sân gia công, không gian kinh doanh, khu bếp nấu, 1 phòng khách, 4 phòng ngủ, 1 phòng thờ gia tiên, 4 phòng tắm+wc, tiểu cảnh ban công.
+ Tổng chi phí xây dựng dự kiến : 1,3 tỷ
THÔNG TIN PHONG THỦY TUỔI 1975 – CHỦ ĐẦU TƯ : PHẠM NGỌC THẠCH
– Năm sinh dương lịch: 1975
– Năm âm lịch : Ất Mão
– Ngũ hành(bản mệnh): Đại khê Thủy tức Nước khe bốn
– Quẻ mệnh(trạch mệnh): Đoài Kim
– Hướng tốt: Tây Bắc (Sinh Khí); Đông Bắc (Phước Đức); Tây Nam (Thiên Y); Tây (Phục Vị)
– Hướng xấu: Bắc (Hoạ Hại); Đông (Tuyệt Mệnh); Đông Nam (Lục Sát); Nam (Ngũ Quỷ).
BÁT TRẠCH TUỔI ẤT MÃO 1975